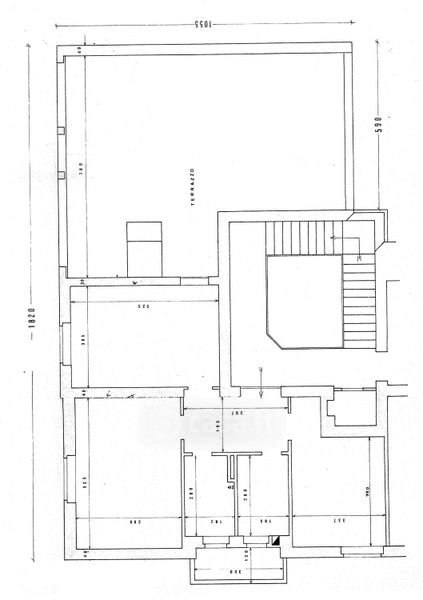
Attico/Mansarda in vendita Via Mac Mahon 11, Milano
Salva
Casa.it
1/34
  • Street View
  • Map