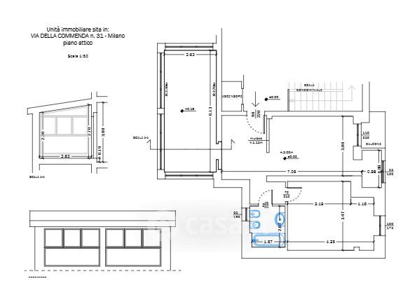
Attico/Mansarda in affitto Via della Commenda 31, Milano
Salva
Casa.it
1/25
  • Street View
  • Map