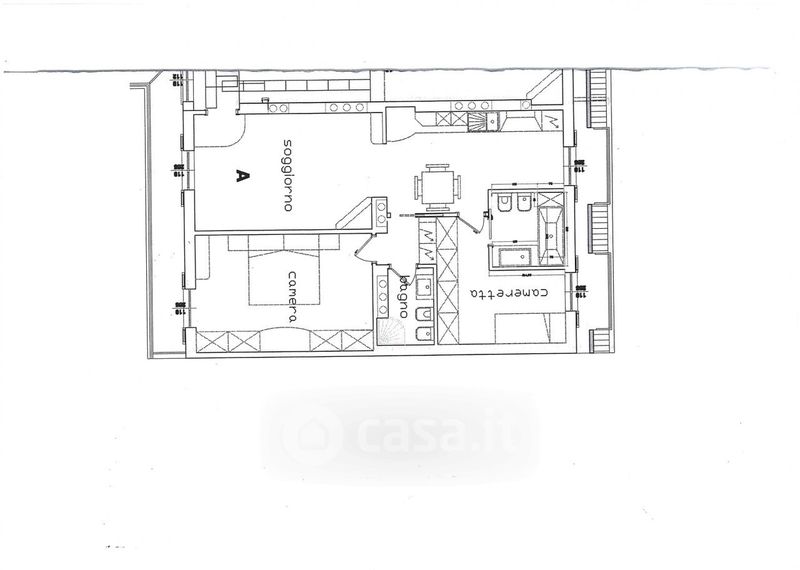
Attico/Mansarda in affitto Via Principe Eugenio , Milano
Salva
Casa.it
1/22
  • Street View
  • Map