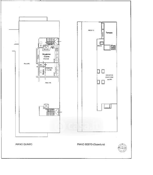
Attico/Mansarda in vendita Via Camillo Prampolini 8, Milano
Salva
Casa.it
1/24
  • Street View
  • Map