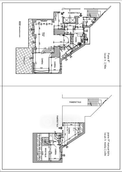
Attico/Mansarda in affitto Via Giacomo Boni , Milano
Salva
Casa.it
1/32
  • Street View
  • Map