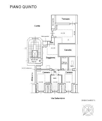
Attico/Mansarda in vendita Via Luigi Settembrini 32, Milano
Salva
Casa.it
1/37
  • Street View
  • Map