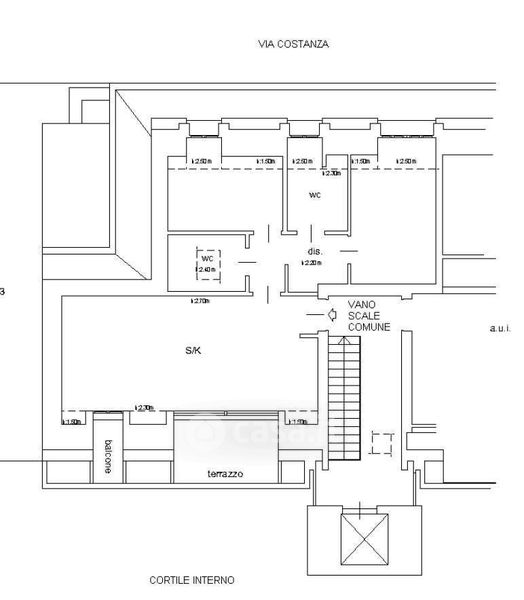
Attico/Mansarda in vendita Via Costanza 19, Milano
Salva
Casa.it
1/36
  • Street View
  • Map