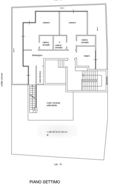
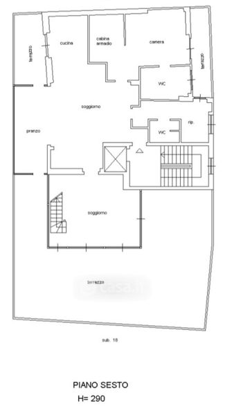
Attico/Mansarda in vendita Via Veneto 9, Peschiera Borromeo
Salva
Casa.it
1/24
  • Street View
  • Map