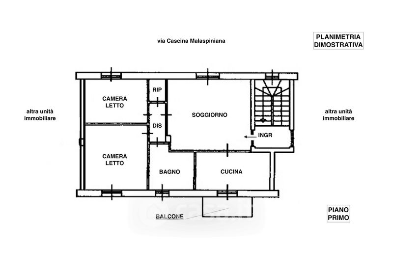
Attico/Mansarda in vendita Via Cascina Malaspiniana 21, Sannazzaro de' Burgondi
Salva
Casa.it
1/31
  • Street View
  • Map