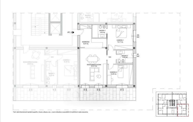
Attico/Mansarda in vendita Via Don Silvio Marzorati 12, Saronno
Salva
Casa.it
1/19
  • Street View
  • Map