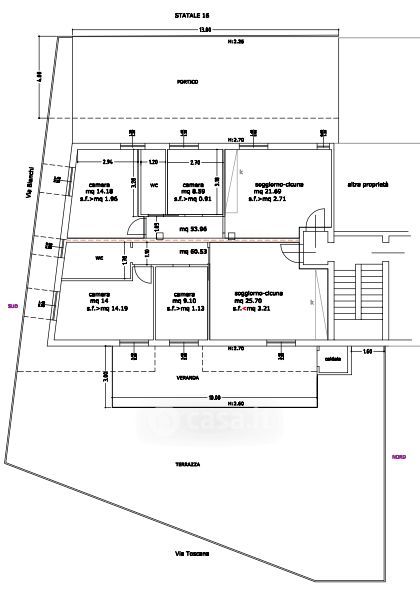
Attico/Mansarda in vendita Via Leonardo Bianchi , San Benedetto del Tronto
Salva
Casa.it
1/7
  • Street View
  • Map