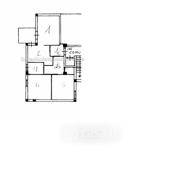
Attico/Mansarda in vendita Via Dante Alighieri , Vallefoglia
Salva
Casa.it
1/29
  • Street View
  • Map