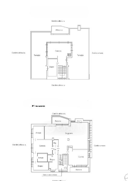
Attico/Mansarda in vendita Corso Alberto Picco , Torino
Salva
Casa.it
1/26
  • Street View
  • Map