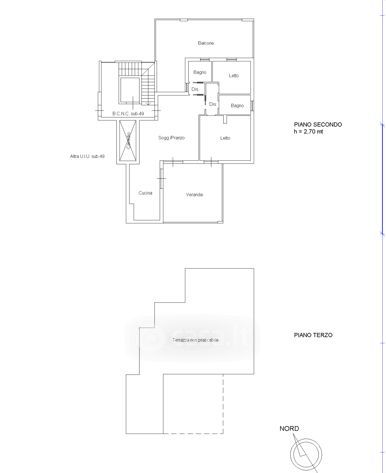
Attico/Mansarda in vendita Via Attilio Biasco 39, Lecce
Salva
Casa.it
1/28
  • Street View
  • Map