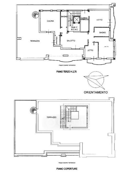
Attico/Mansarda in vendita Piazza Cesare Terranova 5, Parabita
Salva
Casa.it
1/28
  • Street View
  • Map