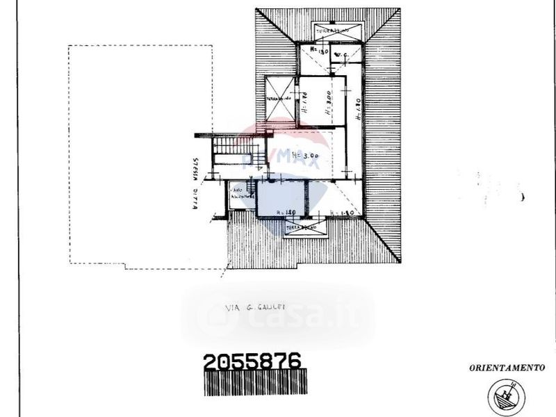
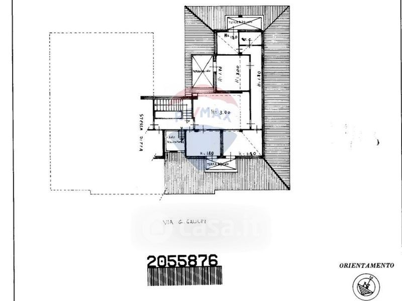
Attico/Mansarda in vendita Via G. Galilei 20, Paternò
Salva
Casa.it
1/21
  • Street View
  • Map