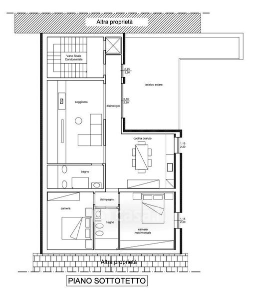
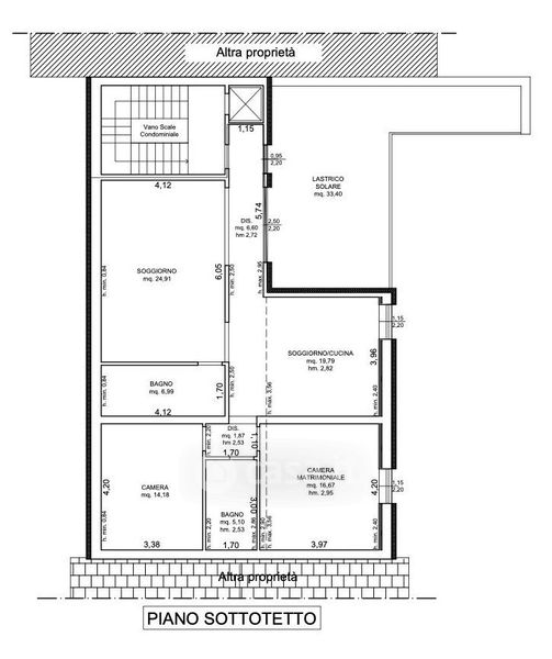
Attico/Mansarda in vendita Via Mario Fabiani , Empoli
Salva
Casa.it
1/13
  • Street View
  • Map