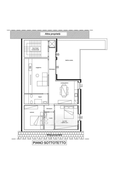
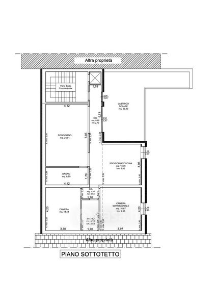
Attico/Mansarda in vendita Via Giovanni Amendola 26, Empoli
Salva
Casa.it
1/24
  • Street View
  • Map