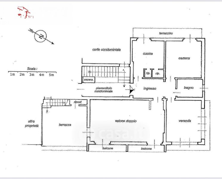
Attico/Mansarda in vendita Via Domenico Maria Manni 10, Firenze
Salva
Casa.it
1/33
  • Street View
  • Map