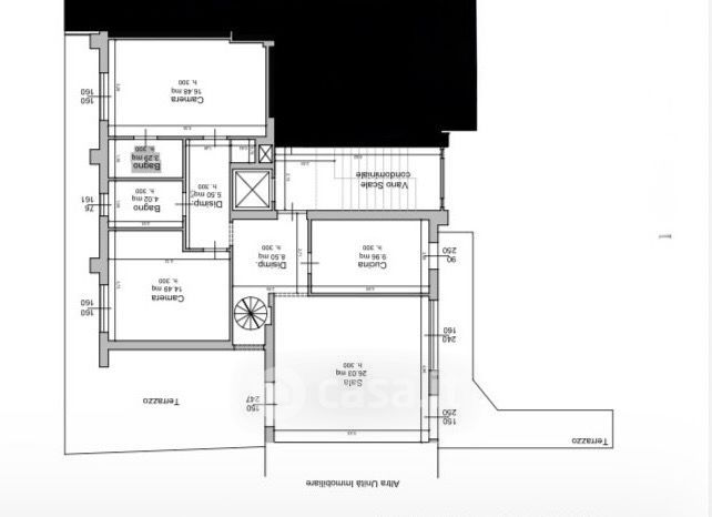
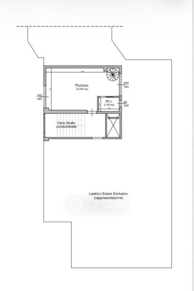
Attico/Mansarda in vendita Viale Giovanni Verga , Firenze
Salva
Casa.it
1/22
  • Street View
  • Map