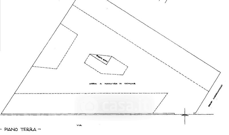
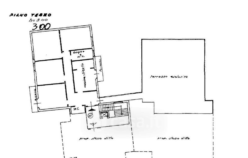
Attico/Mansarda in vendita Piazza Vasco Magrini , Firenze
Salva
Casa.it
1/46
  • Street View
  • Map