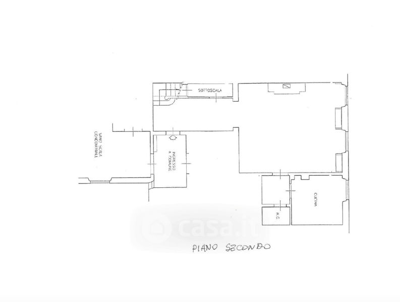
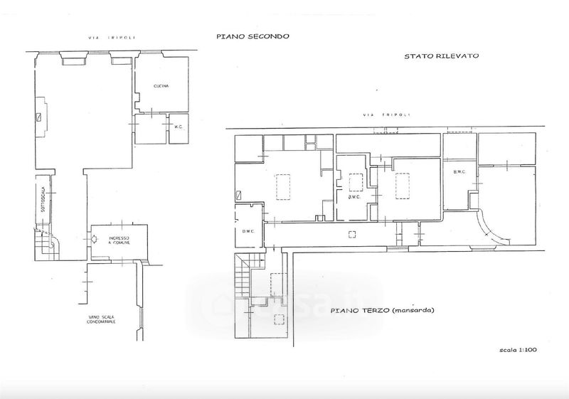
Attico/Mansarda in vendita Lungarno della Zecca Vecchia , Firenze
Salva
Casa.it
1/29
  • Street View
  • Map