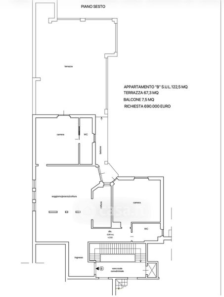
Attico/Mansarda in vendita Viale Manfredo Fanti , Firenze
Salva
Casa.it
1/13
  • Street View
  • Map