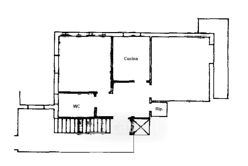
Attico/Mansarda in vendita Via Giacomo Puccini 185, Sesto Fiorentino
Salva
Casa.it
1/39
  • Street View
  • Map