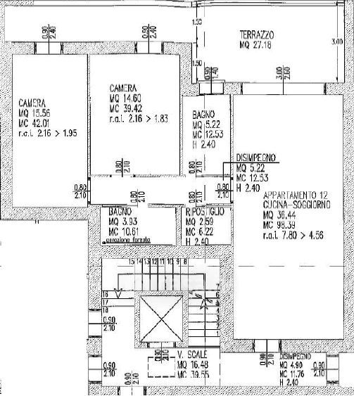
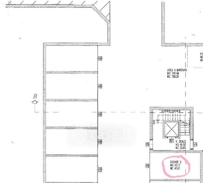
Attico/Mansarda in vendita Via Rovereto , Mestrino
Salva
Casa.it
1/23
  • Street View
  • Map