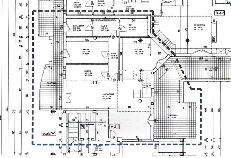
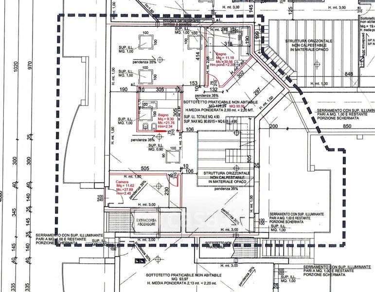
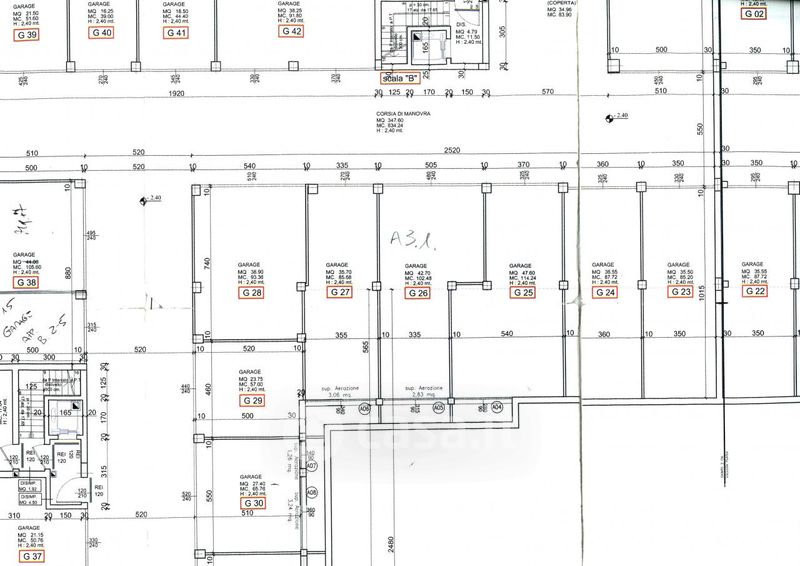
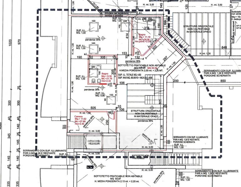
Attico/Mansarda in vendita Corso delle Terme , Montegrotto Terme
Salva
Casa.it
1/23
  • Street View
  • Map