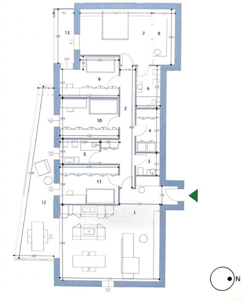
Attico/Mansarda in vendita Via Citolo da Perugia , Padova
Salva
Casa.it
1/23
  • Street View
  • Map