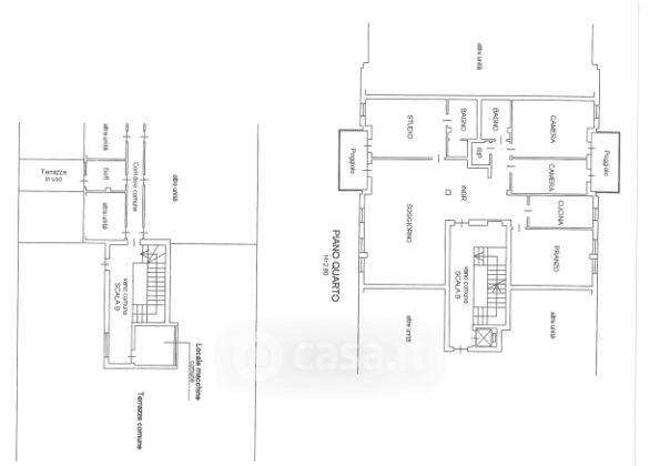
Attico/Mansarda in vendita Via Nazareth , Padova
Salva
Casa.it
1/43
  • Street View
  • Map