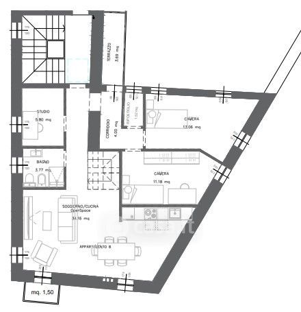
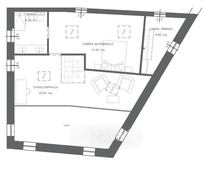
Attico/Mansarda in vendita Via Madonna , Pescantina
Salva
Casa.it
1/17
  • Street View
  • Map