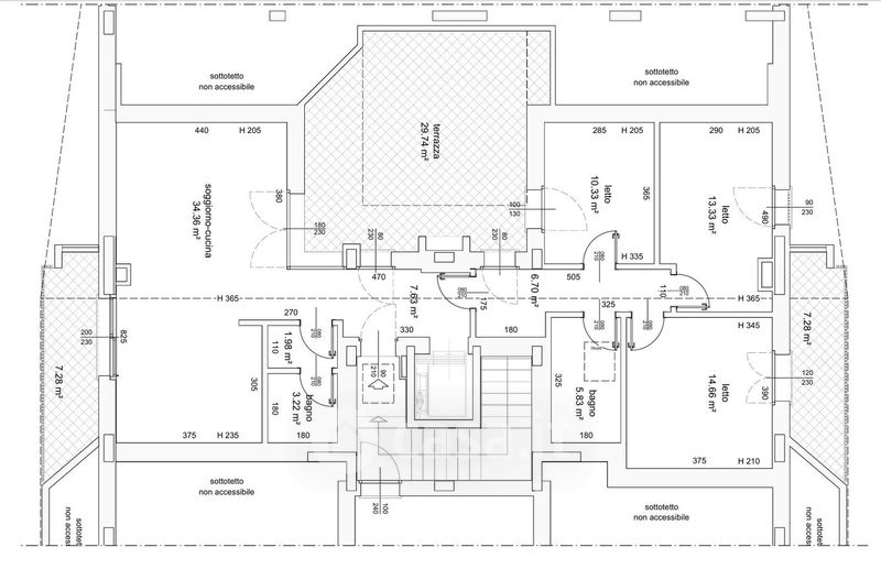
Attico/Mansarda in vendita Via Venezia , Peschiera del Garda
Salva
Casa.it
1/21
  • Street View
  • Map