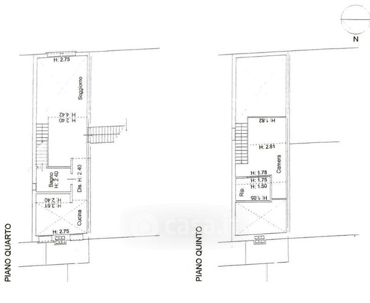
Attico/Mansarda in vendita Campo San Barnaba , Venezia
Salva
Casa.it
1/21
  • Street View
  • Map