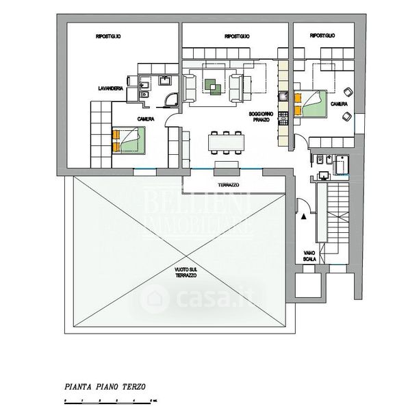
Attico/Mansarda in vendita Contrà Cantarane , Vicenza
Salva
Casa.it
1/21
  • Street View
  • Map