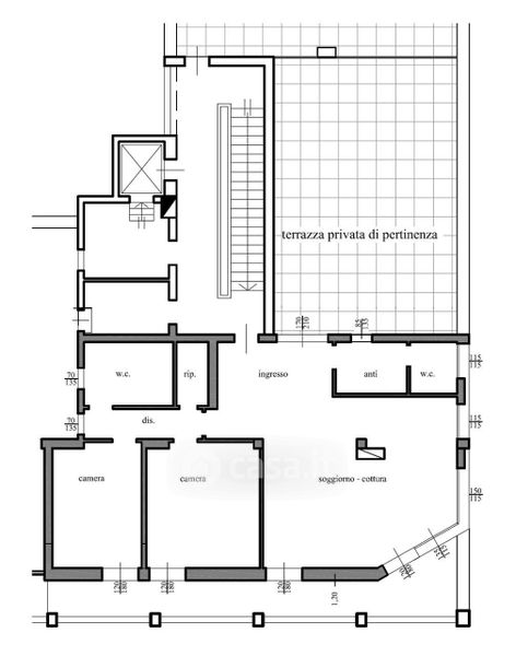
Attico/Mansarda in vendita Viale Milano 14, Vicenza
Salva
Casa.it
1/46
  • Street View
  • Map