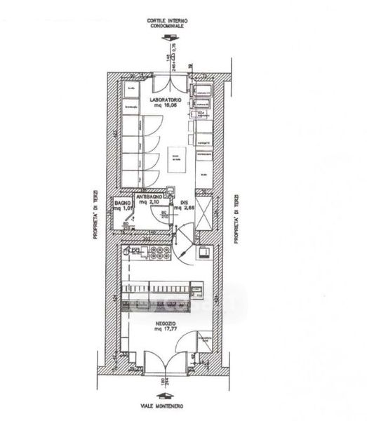
Attività/Licenza (con o senza mura) in vendita Viale Monte Nero , Milano
Salva
Casa.it
1/12
  • Street View
  • Map