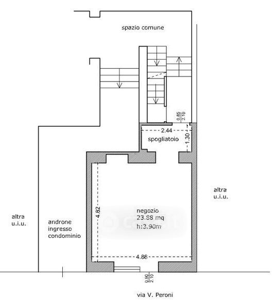
Attività/Licenza (con o senza mura) in affitto Via Carlo Valvassori Peroni 59, Milano
Salva
Casa.it
1/10
  • Street View
  • Map