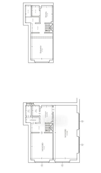
Attività/Licenza (con o senza mura) in vendita Piazzale Donatello , Firenze
Salva
Casa.it
1/13
  • Street View
  • Map