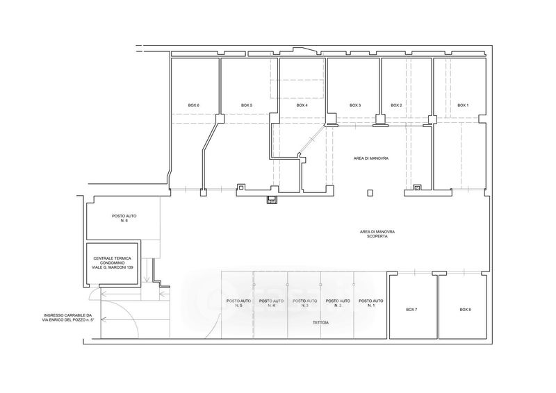
Box/posto auto in vendita Via Enrico dal Pozzo 5, Roma
Salva
Casa.it
1/3
  • Street View
  • Map