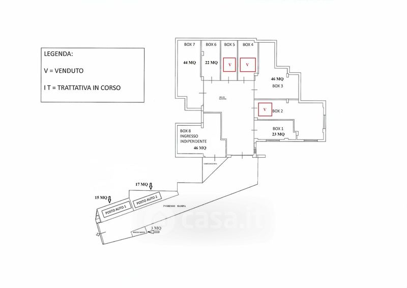
Box/posto auto in vendita Via delle Calasanziane , Roma
Salva
Casa.it
1/31
  • Street View
  • Map