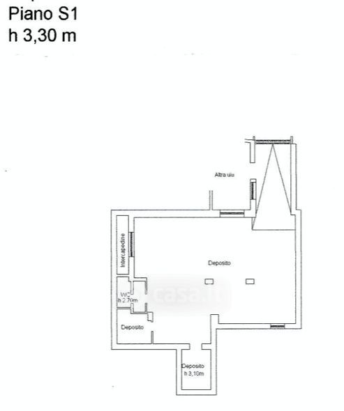
Box/posto auto in vendita Via Monte Senario 7, Roma
Salva
Casa.it
1/9
  • Street View
  • Map