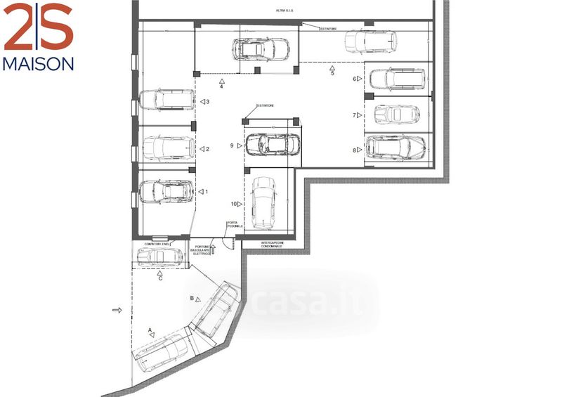
Box/posto auto in vendita Via Angelo Scribanti , Genova
Salva
Casa.it
1/2
  • Street View
  • Map