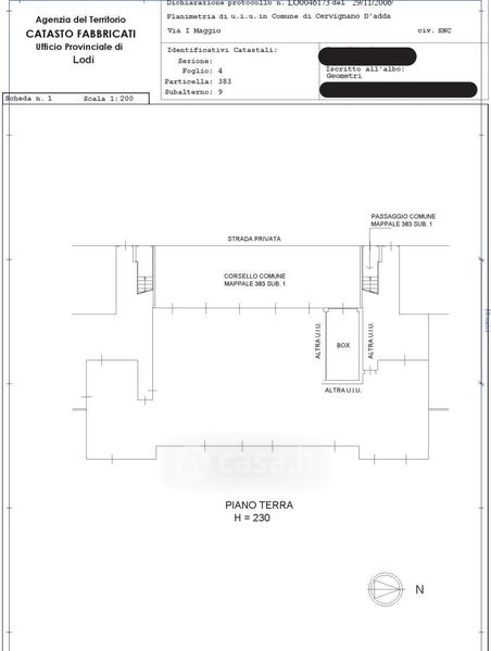
Box/posto auto in vendita Via 1º Maggio , Cervignano d'Adda
Salva
Casa.it
1/5
  • Street View
  • Map