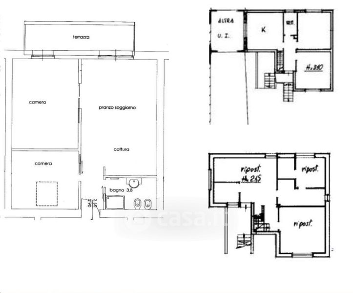
Box/posto auto in vendita Via Geremia Bonomelli 92, Cremona
Salva
Casa.it
1/17
  • Street View
  • Map