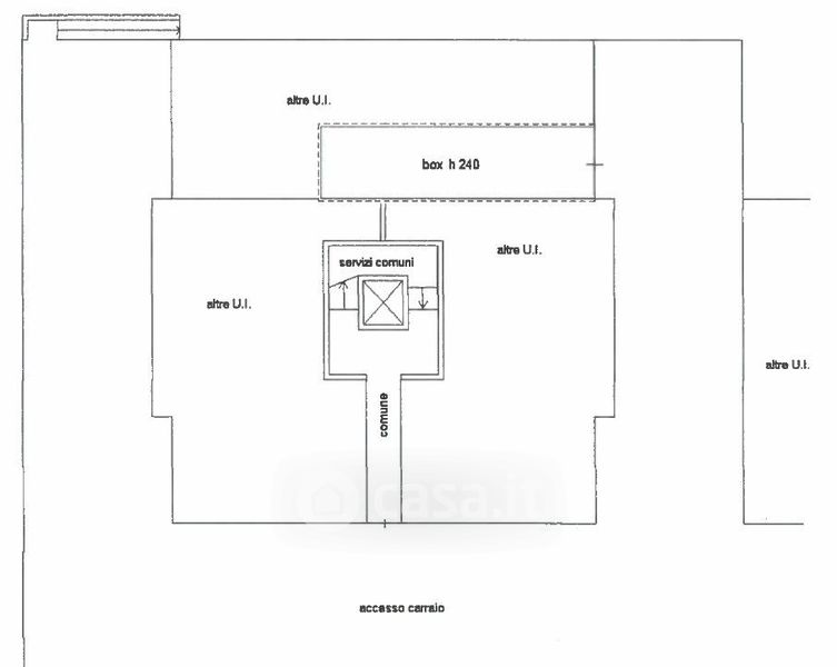
Box/posto auto in vendita Via Enrico Fermi 2, Gallarate
Salva
Casa.it
1/4
  • Street View
  • Map