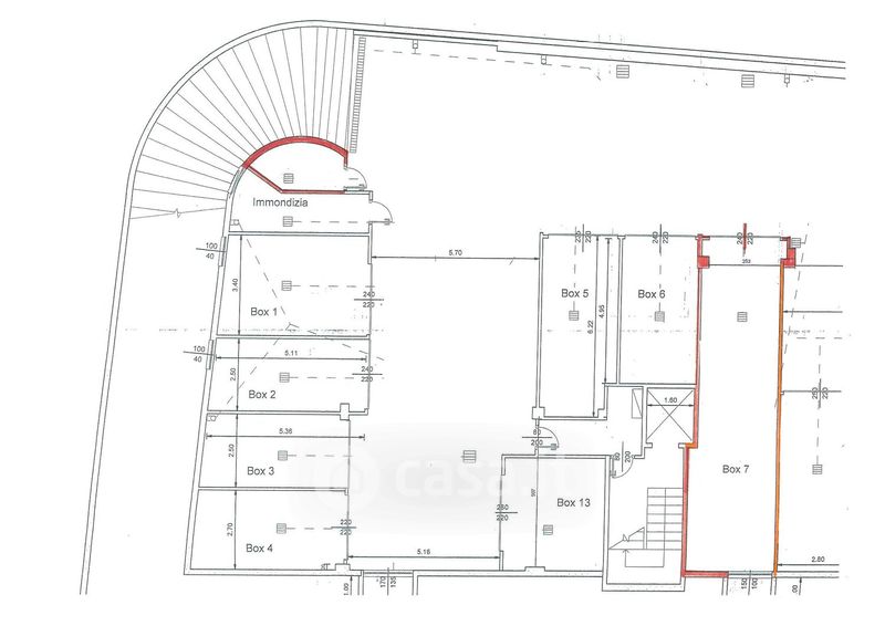
Box/posto auto in affitto Via Giotto 35, Mariano Comense
Salva
Casa.it
1/12
  • Street View
  • Map