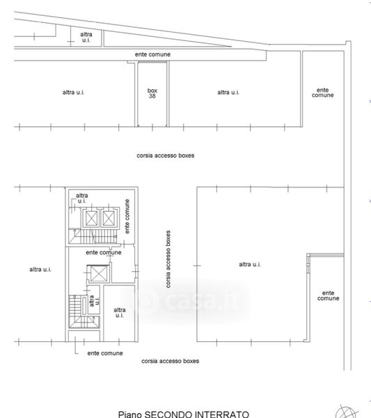
Box/posto auto in affitto Via Timavo 32, Milano
Salva
Casa.it
1/18
  • Street View
  • Map