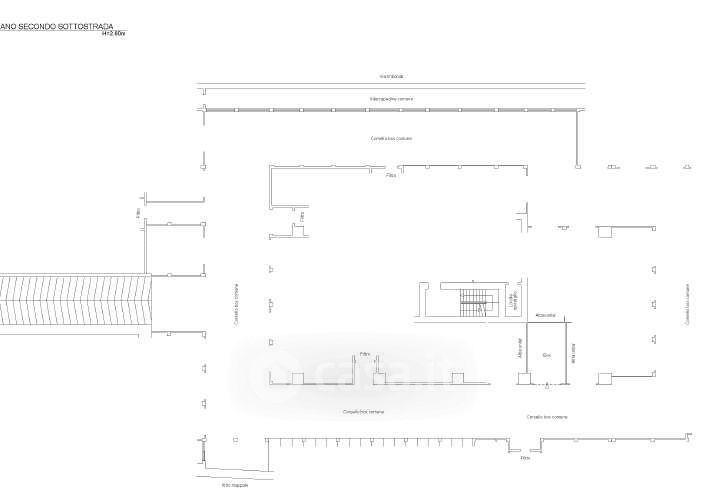
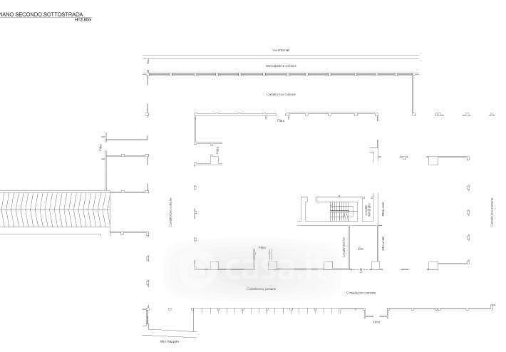
Box/posto auto in vendita Via Carlo Imbonati 61 -57, Milano
Salva
Casa.it
1/8
  • Street View
  • Map