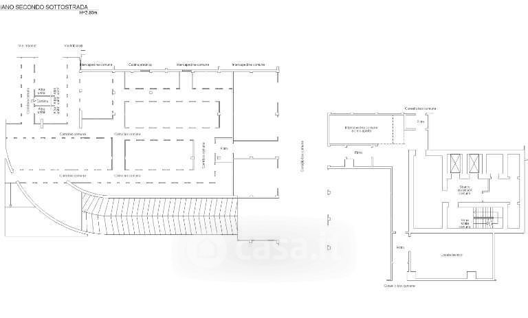
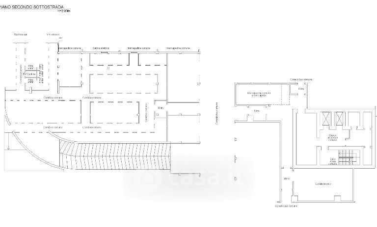
Box/posto auto in vendita Via Carlo Imbonati , Milano
Salva
Casa.it
1/15
  • Street View
  • Map