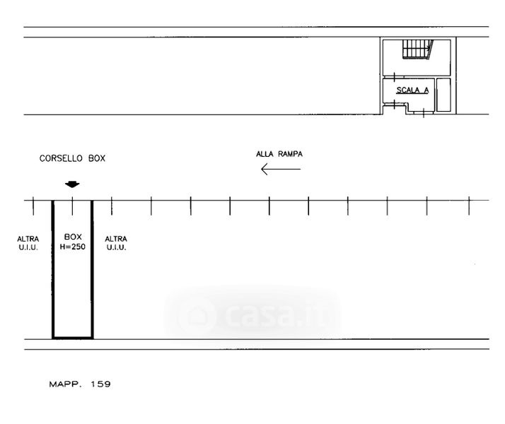
Box/posto auto in vendita Via Francesco Viganò 6, Milano
Salva
Casa.it
1/10
  • Street View
  • Map