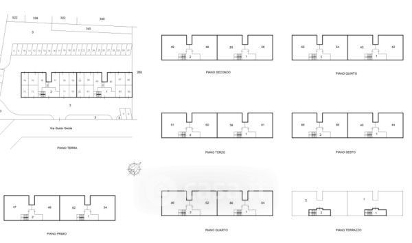
Box/posto auto in vendita Via Guido Guida , Trapani
Salva
Casa.it
1/11
  • Street View
  • Map