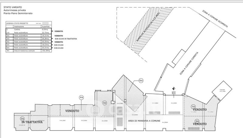
Box/posto auto in vendita Viale Francesco Redi , Firenze
Salva
Casa.it
1/12
  • Street View
  • Map